2 Carsegour Steadings, Kinross, KY13 0LG
For Sale
£395,000
Offers Over
4
4
3
Property Features
- Charming Stone built semi detached cottage
- Spacious Accommodation
- 3 Reception Rooms
- 4 Bedrooms
- 2 En-suites & Family Bathroom
- Kitchen with Utility Room
- Private Courtyard
- Garage & Driveway
MEET YOUR PROPERTY ADVISOR

Property Summary
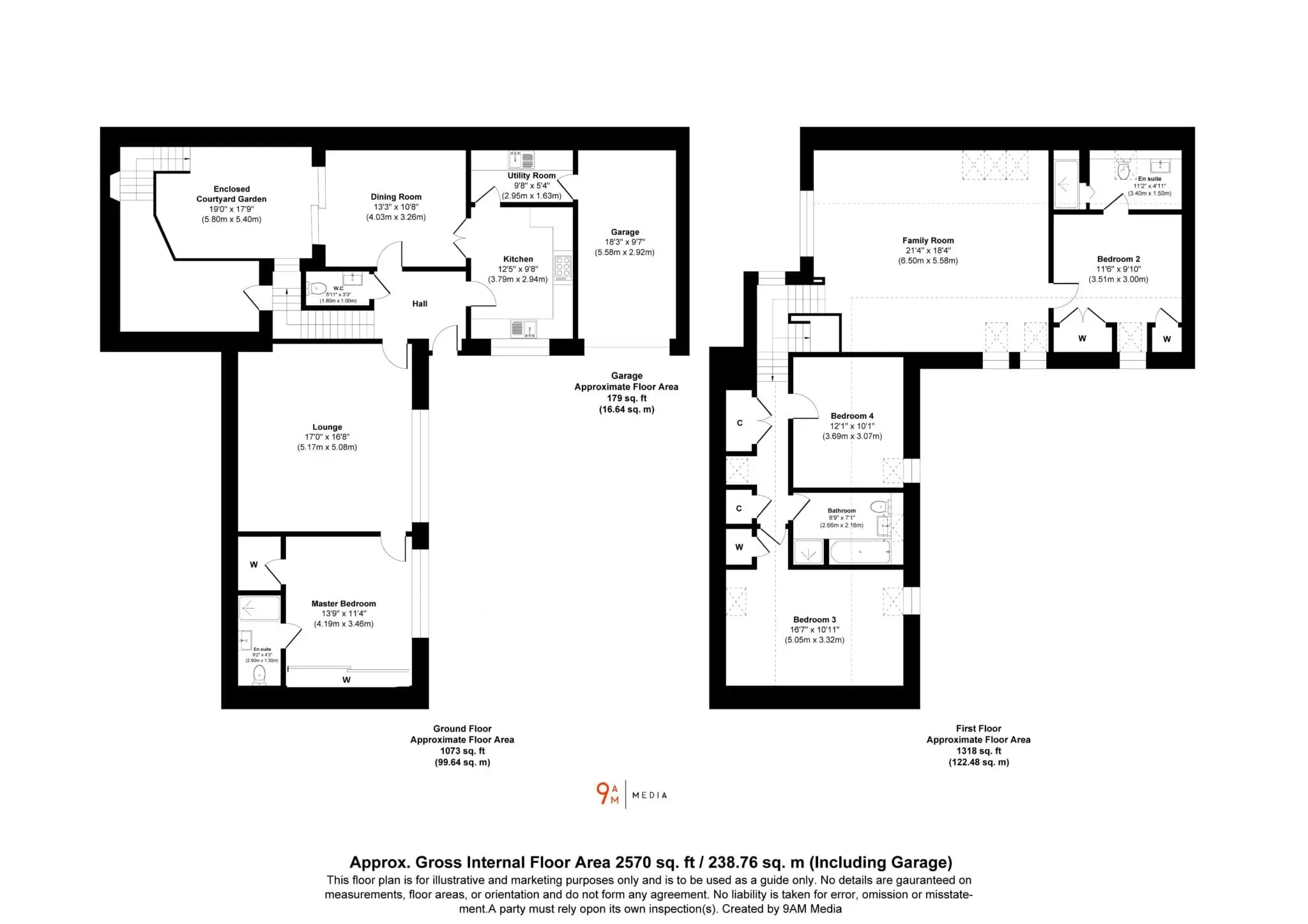
*** £15,000 under Home Report Value ***Located on the outskirts of the charming semi-rural area of Cleish, Kinross, this well-presented stone built semi detached cottage offers a delightful blend of modern living and countryside charm. With three spacious reception rooms and four good sized bedrooms, this property is perfect for families seeking a tranquil lifestyle while remaining conveniently close to local amenities.Upon entering, you are greeted by a welcoming entrance hallway that leads to the upper floor and gives access to all ground level accommodation. The formal lounge is a spacious room complete with a cosy wood burner that adds warmth and character and large windows overlooking the front courtyard allowing natural light to flood the space. A door from the lounge leads to a useful ground floor double bedroom and en-suite shower room. The kitchen is fully fitted with ample units at base and wall levels and boasts a separate utility room, providing practicality and convenience for busy households. A separate dining room and w.c completes the ground floor accommodation. The dining room has patio doors leading to the rear courtyard, this seamless connection to the outdoor space makes it perfect for entertaining or simply enjoying a peaceful afternoon. The upper level boasts a brightly presented spacious third reception room with direct access to a balcony seating area and the outdoor courtyard. There are three further bedrooms on this level, one with an en-suite shower room and a family bathroom.Outside, the property boasts private parking spaces to the front, ensuring convenience for residents and guests alike and leading to a single garage. The front garden is mainly chipped for ease of maintenance. The rear courtyard is private outdoor space, perfect for al fresco dining or simply unwinding after a long day.
Property Features
- Charming Stone built semi detached cottage
- Spacious Accommodation
- 3 Reception Rooms
- 4 Bedrooms
- 2 En-suites & Family Bathroom
- Kitchen with Utility Room
- Private Courtyard
- Garage & Driveway
Property Summary
*** £15,000 under Home Report Value ***Located on the outskirts of the charming semi-rural area of Cleish, Kinross, this well-presented stone built semi detached cottage offers a delightful blend of modern living and countryside charm. With three spacious reception rooms and four good sized bedrooms, this property is perfect for families seeking a tranquil lifestyle while remaining conveniently close to local amenities.Upon entering, you are greeted by a welcoming entrance hallway that leads to the upper floor and gives access to all ground level accommodation. The formal lounge is a spacious room complete with a cosy wood burner that adds warmth and character and large windows overlooking the front courtyard allowing natural light to flood the space. A door from the lounge leads to a useful ground floor double bedroom and en-suite shower room. The kitchen is fully fitted with ample units at base and wall levels and boasts a separate utility room, providing practicality and convenience for busy households. A separate dining room and w.c completes the ground floor accommodation. The dining room has patio doors leading to the rear courtyard, this seamless connection to the outdoor space makes it perfect for entertaining or simply enjoying a peaceful afternoon. The upper level boasts a brightly presented spacious third reception room with direct access to a balcony seating area and the outdoor courtyard. There are three further bedrooms on this level, one with an en-suite shower room and a family bathroom.Outside, the property boasts private parking spaces to the front, ensuring convenience for residents and guests alike and leading to a single garage. The front garden is mainly chipped for ease of maintenance. The rear courtyard is private outdoor space, perfect for al fresco dining or simply unwinding after a long day.